Обяви 0 За нас Контакти
Продава КЪЩА
град Кърджали, Веселчане
255 000 €
498 736.65 лв.

(1 186 €, 2 319.61 лв./m2)
Не се начислява ДДС
История на цената
Коригирана в 15:25 на 28 април, 2026 год.
Обявата е посетена 624 пъти.
Площ:
215 m2
Двор:
500 m2
Етаж:
2
Строителство:
Тухла, Ще бъде въведен в експлоатация 2027 г.

Описание на имота:


ТОП ЛОКАЦИЯ ! ! ! ПАНОРАМНА ГЛЕДКА ! ! ! ЛУКСОЗНО ИЗПЪЛНЕНИЕ ! ! !

Брокер Жокер представя на Вашето внимание комплекс от 10 модерни еднофамилни къщи, разположени в изключително атрактивения и бързоразвиващ се район, във вилната зона между квартал Веселчане и село Петлино.

Към момента 4 от къщите са продадени, а в продажба са общо 6 свободни имота със следното функционално разпределение:

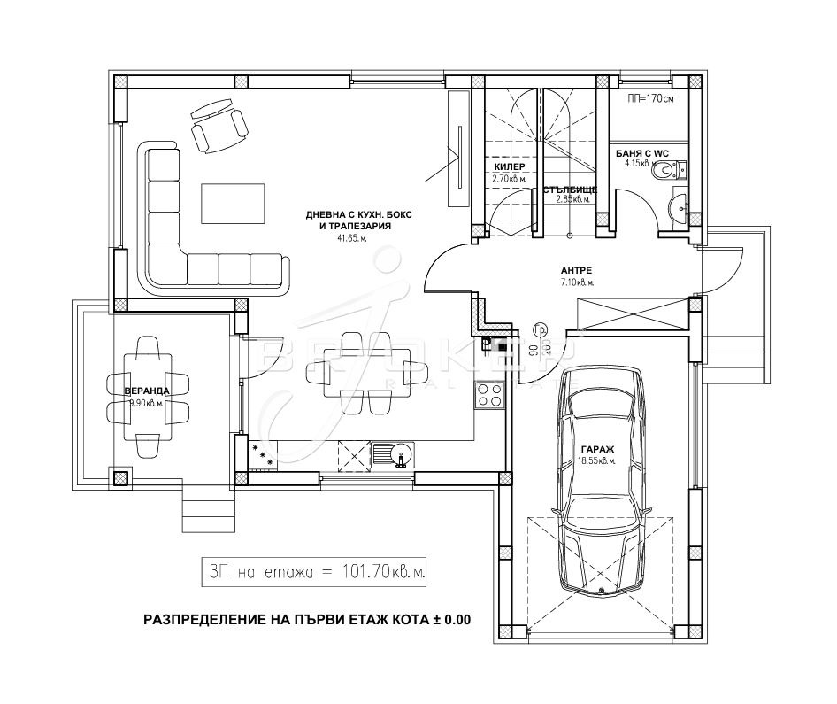
Първи етаж: Антре, просторна и слънчева дневна с кухненски бокс и трапезария с директен излаз на веранда, килер, баня с тоалетна, топла връзка към гараж и вътрешно стълбище.

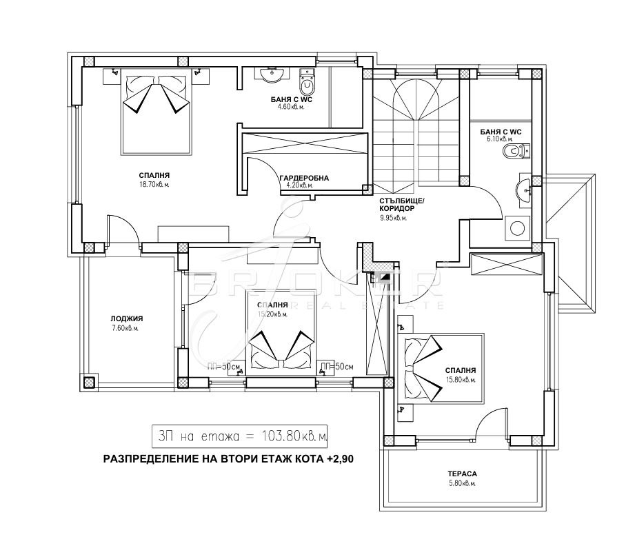
Втори етаж: Коридор, просторна родителска спалня със собствена гардеробна и баня с тоалетна, две допълнителни спални (едната с излаз на лоджия, другата с тераса) и обща баня с тоалетна.

Налични опции за избор:

Къща тип А (3 бр.)

РЗП: 215 кв.м. Двор: 500 кв.м.

Къща тип Б (3 бр.)

РЗП: 215 кв.м. Двор: 400 кв.м.

Имотите са проектирани с мисъл за максимален комфорт, като съчетават модерна архитектура и близост до природата. Идеални са за семейства, търсещи спокойствие, без да се лишават от удобствата на градската среда.

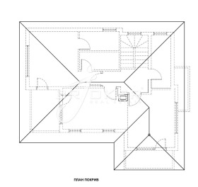
За Ваше улеснение прилагаме схема на разпределение. За повече информация и детайли се обадете сега и цитирайте този код: 1259
Особености
Тухла
За контакт:
0876634555
Агенция:
БРОКЕР ЖОКЕР
0876634555
БРОКЕР ЖОКЕР logo
Медал за прослужено време
В imot.bg от 2023 г.
brokerjoker.imot.bg
Адрес:
област Кърджали, гр. Кърджали, Кърджали
ИЗПРАТИ ЗАПИТВАНЕ
ИЗПРАТИ ЗАПИТВАНЕТО

Продава КЪЩА
град Кърджали, Веселчане
Обява: 1j177462271206746

255 000 €
498 736.65 лв.
История на цената
(1 186 €, 2 319.61 лв./m2)

Не се начислява ДДС
ЗАПАЗИ ОБЯВАТА

Местоположение: град Кърджали, Веселчане

Допълнителни данни за имотите в района и сравнение с други райони

Покажи

Период

и 5 месеца

* Средните цени са определени чрез медианна стойност